top of page

CONSTRUCTION DRAWINGS
Location
India, USA
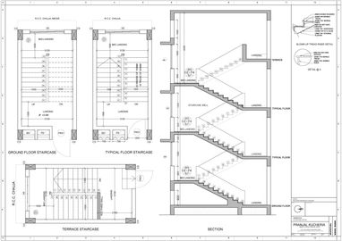
A comprehensive collection of construction drawings developed across various projects and design explorations. It highlights a progression of technical skills, attention to detail, and the ability to translate conceptual designs into precise, buildable documents. The drawings encompass a range of building types and scales, showcasing expertise in structural coordination, material articulation, and system integration.
Year:
2025
Project Type
Construction Drawings

bottom of page




